- 01 About Us
- 02 Our Work
- 03 The Team
- 04 Latest News
- 05 Careers
©2026 Centric Architecture. All rights reserved.
A work of the Buchanan Arts District
in Nashville, Tennessee.
Location
Nashville, TN
Year Completed
2020
Client
The Belonging Co.
Adaptive Reuse
Gathering
Workplace
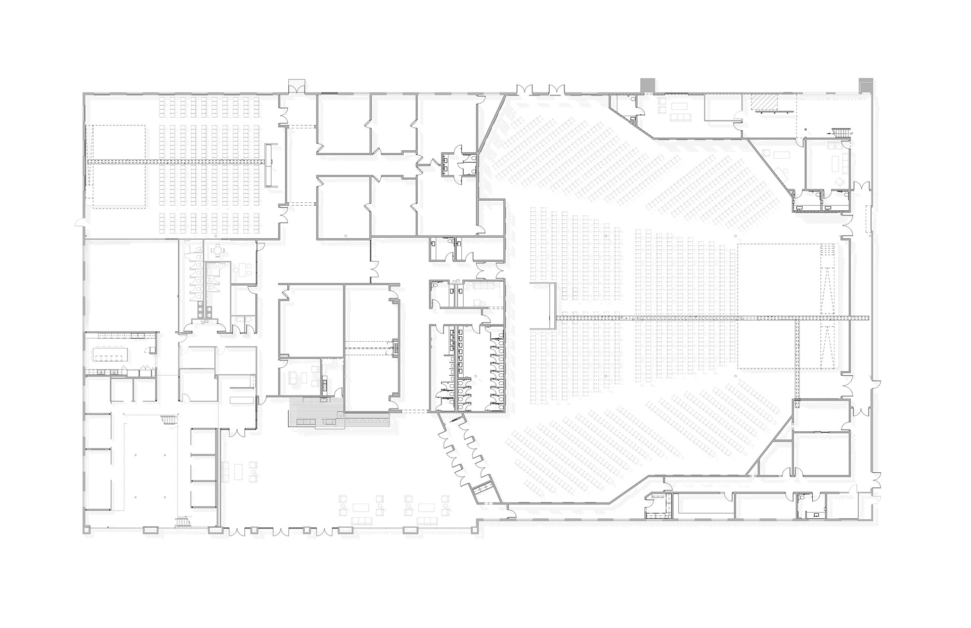
The Belonging Co. Church is a non-denominational Christian church, known throughout the community for their contemporary worship service, incorporating amplified music, lighting, and production into its services. It was founded in 2013 by Co-Pastors Henry and Alex Seeley, who moved to Nashville from Australia in 2012. They have been serving their congregation out of Rocketown, but to meet the needs of their growing congregation, they have purchased their own building in MetroCenter and are converting this 50,000 sf medical health services facility space into a new venue for contemporary worship space.
The modern aesthetic of the church was a guiding principle in the design of this spaces which includes a gathering area, main auditorium, youth auditorium, youth classrooms, church offices and supporting production rooms.
Taking advantage of the tall building structure, the design team created an uplifting gathering space at the main entry, featuring a cozy coffee bar at the center to facilitate gatherings and conversation before and after services. The 300-seat Youth Auditorium and 1400-seat Main Auditorium are painted out black and have been carefully coordinated with mechanical, electrical and AV teams to maintain high ceilings while providing the theatrical production needs of lighting, video and sound in the space.