- 01 About Us
- 02 Our Work
- 03 The Team
- 04 Latest News
- 05 Careers
©2026 Centric Architecture. All rights reserved.
A work of the Buchanan Arts District
in Nashville, Tennessee.
Location
Murfreesboro, TN
Year Completed
In Progress
Client
People of Hope Church
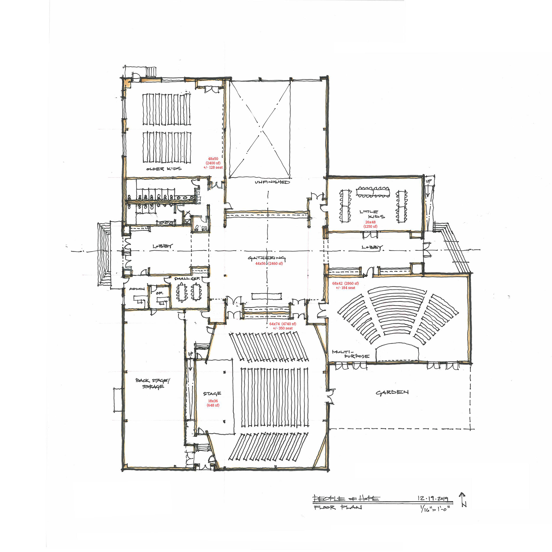
Adaptive Reuse
Gathering
This former 1950’s-era produce warehouse and distribution center will be the new, permanent home for People of Hope Church: a young church with a focus on serving the Murfreesboro community and particularly the MTSU student population. POH discovered this fixer-upper because of its prime location and the availability of ample space with room for this church to grow. Located in “The Bottoms” area of Murfreesboro, this industrial area - with immediate adjacency to downtown and other nearby amenities - was part of a city-conducted master planning process for redevelopment. The Church stands to be one of the first new projects in the area, becoming a catalyst for mixed use revitalization with a focus on the industrial character and history. People of Hope intend to keep the existing pre-engineered metal warehouse largely intact, with a modern-meets-industrial make-over that will fit in both with the grittiness of the current neighborhood and the anticipated hip, evolving vibrancy of a new mixed-use community, while still feeling like a place of worship and community gathering. The interior of the space takes advantage of the tall volumes to create a 450-seat gathering space, with an ample, comfortable lobby and pre-function space, mixed classrooms and office areas with room for expansion, back-of-house production space, and an unfinished area that is conceived as a potential future coffee shop or community outreach ministry.