- 01 About Us
- 02 Our Work
- 03 The Team
- 04 Latest News
- 05 Careers
©2026 Centric Architecture. All rights reserved.
A work of the Buchanan Arts District
in Nashville, Tennessee.
Location
Nashville, TN
Year Completed
2023
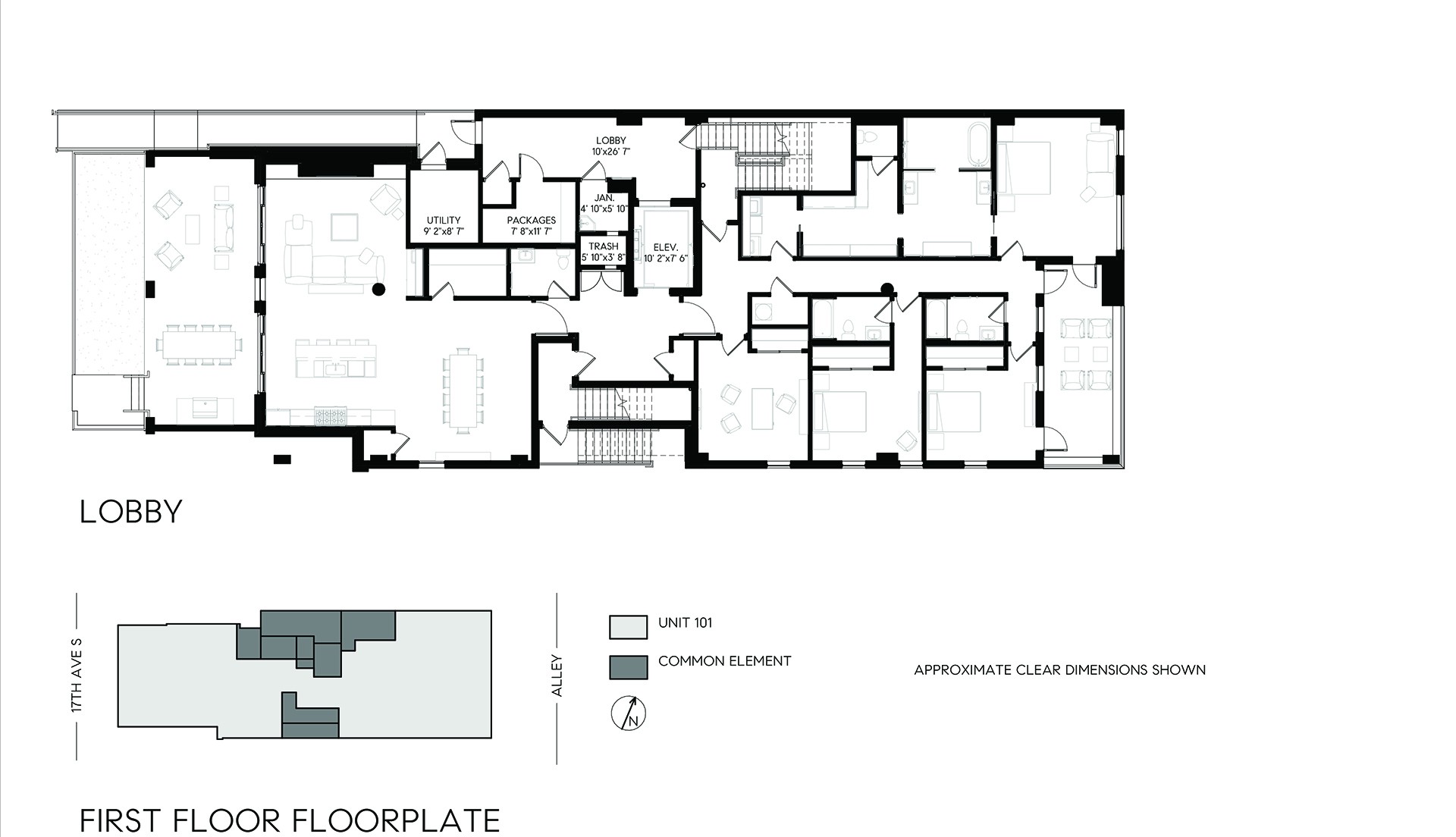
Housing
From the outset, Malvern was designed with the intention of being the most exclusive boutique condo building in Nashville. Named after the neighborhood in Melbourne, Australia where the inspiration for the design originated, Malvern is an exercise in high design, quality materials, privacy, size, and location. Spanning across 6 levels , each of the seven residences offer a unique living experience more akin to a custom home than a typical condo. With secure underground parking, direct-to-unit elevator access, home-sized units ranging from 2,100-3,800 SF, and oversized exterior terraces designed for dining and entertaining, Malvern offers a rare residential offering in the heart of Nashville’s Music Row neighborhood. Inside, Malvern has been designed with classic materials like wide plank white oak floors, marble countertops and backsplashes, tambour white oak wall panelling, European style custom cabinetry, and large format Fiori Di Bosco wall tiles in a contemporary fashion. Malvern is located among the music studios of Music Row and is walkable to the shops and restaurants of Edgehill Village, Vanderbilt Hospital, and Midtown and Gulch neighborhoods. With the convenience of a condo, but the amenities of a custom home, Malvern offers a living experience unlike any other in Nashville.