- 01 About Us
 - 02 Our Work
 - 03 The Team
 - 04 Latest News
 - 05 Careers
 
©2025 Centric Architecture. All rights reserved.
A work of the Buchanan Arts District
in Nashville, Tennessee.
Location
Madison, TN
Year Completed
In Progress
Client
All Aboard Madison, LLC
Gathering
Adaptive Reuse
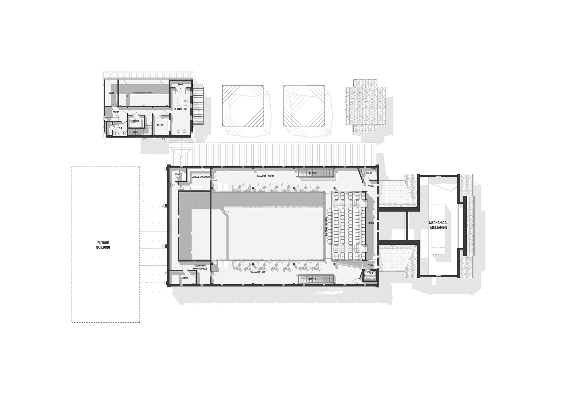
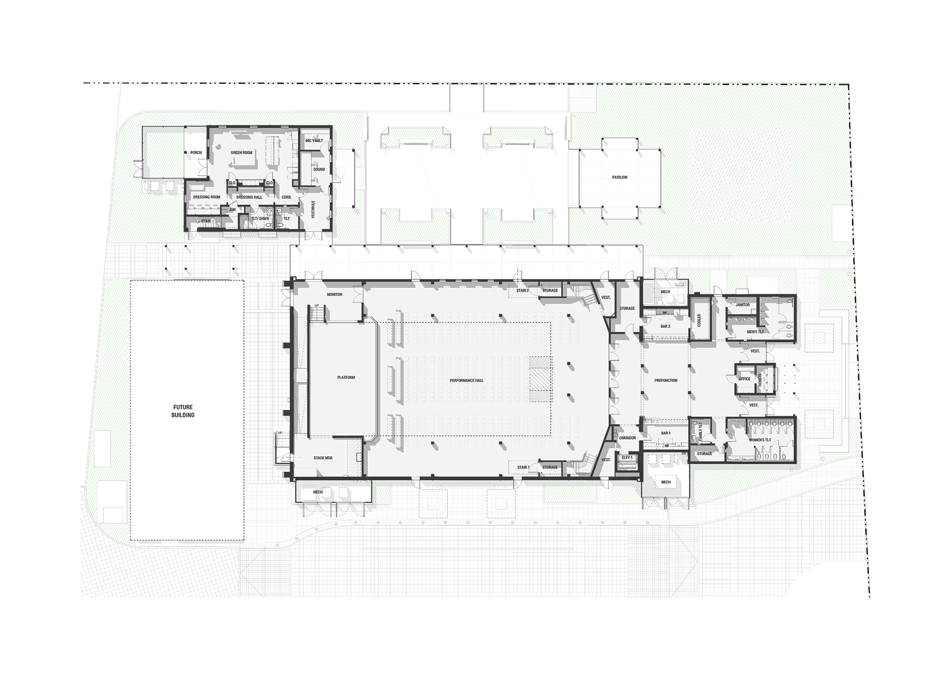
Harken Hall is an intimate music venue designed to host shows up to 750-1,200 capacity. In addition to live music events, this project will host a variety concerts, private shows and corporate events.
A heavy timber-framed structure sets the stage for this music sanctuary. The Harken Hall team wished to recreate and enhance the special intimacy of the early days of live music radio shows combined with a local rural vernacular. The barn will be clad in reclaimed timber siding and each gable end wall is constructed of stone with aesthetics reminiscent of historic stone structures found in the surrounding areas. Custom stained glass windows give a nod to the historic Ryman Auditorium.
The program centers around a two-story performance hall which is flanked by outdoor gathering space to its north and prefunction on its eastern side. A processional entry sequence leads you from the ticket windows through prefunction amenities and into the performance hall. Connected via a long, covered porch is a separate green room building which also houses sound and broadcast support. Additionally, an smaller building located on site will house space for food service and catering kitchen.
The portico that traces the edge of the buildings opens out onto an exterior courtyard where guests can arrive early and enjoy a meal and entertainment prior to shows. Nestled into a park-like setting, the outdoor gathering space connects visually to neighboring Amqui Station. Once a functional train depot saved from demolition by Johnny Cash, it now serves as the Visitor and Welcome Center for Madison as well as stand-alone museum. The relaxed, campus-like feel creates a rural vibe that’s just minutes from the urban downtown Nashville area. The culmination is an overall experience that reinforces intimacy and evokes that familial feeling that when you’re here, you’re home.