- 01 About Us
- 02 Our Work
- 03 The Team
- 04 Latest News
- 05 Careers
©2026 Centric Architecture. All rights reserved.
A work of the Buchanan Arts District
in Nashville, Tennessee.
Location
Nashville, TN
Year Completed
2023
Client
Vintage South
Adaptive Reuse
Housing
Workplace
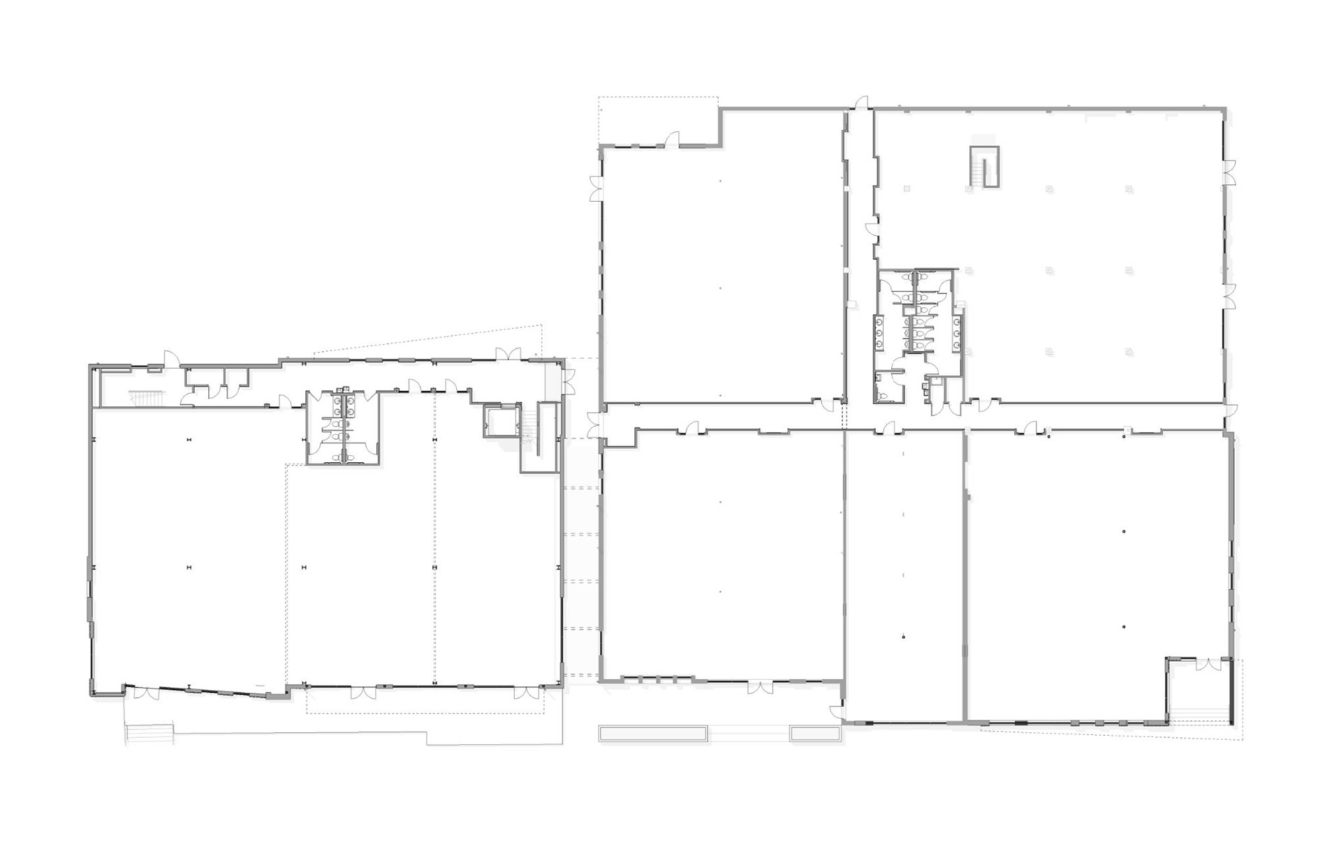
6100 Robertson Road is nestled in the heart of Charlotte Park – a working class neighborhood with industrial roots. Once home to a neighborhood grocery store, an existing building at the corner of a busy intersection has fallen into disrepair over the years with only portions of it remaining occupied by a stone shop.
With a vision to what neighborhood centers can and should be, this corner is being revitalized to serve as hub safely connecting people to amenities with new sidewalk infrastructure and integrated community and green space.
The original 23,000 SF was rehabilitated to house restaurant, retail and office with an additional 16,000 SF of new construction adjacent tying the old and new together. Patios, connectivity, and a new identity to the prominent corner have been the design inspiration in these early stages. The rear portion of the side will include 24 townhomes to slowly transition back to the density of the neighborhood behind them.
The site had to undergo a policy and zone change in order to accommodate all the items presented and was welcomed by a community that has seen a lack of basic services as development has mostly occurred in the Nations and Sylvan Park.